Элитка, 1 ком, 46 м2, этаж 10/16, ж/к Восточный Парк-2, Сост: Строящийся ПСО

$48 500 / 4 230 655сом
, Анкара,Ауэзова

ID: 69332
В понравившиеся
Срочная продажа
Фото
Карта

Обзор

  • Опубликовано:
  • 23.10.2025 17:06
  • 46 м2
ID объекта : 69332
Тип:
Этаж: 10/16
Цена: $48 500
Размер объекта: 46 м2
Комнат: 1
Cостояние: Строящийся ПСО
Коммуникации:
Адрес: Анкара,Ауэзова
Район: Тунгуч мкр

Описание

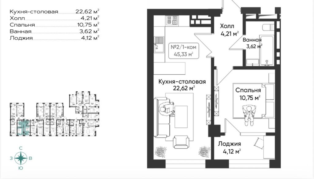
 Срочно продаётся 1-комнатная квартира-студия в ЖК «Восточный Парк 2»!

 -46 м², расположена на 10 этаже 16-этажного современного дома от надежного застройщика Delmar Group.

-1 комната (студийная планировка) — можно разделить на зону отдыха и кухню

-Этаж: 10 из 16

-Площадь: 46 м²

Состояние:ПСО 4 квартал 2026 год

Документы: договор долевого участия (ДДУ)

Тип сделки: наличный расчёт

Срок сдачи: 4 квартал 2026 года

Локация:Жилой комплекс находится в перспективном районе Тунгу — отличная транспортная доступность, рядом школы, детсады, магазины, аптеки и остановки.

Отличное предложение для инвестиций или комфортного проживания!

Цена:

Кыргыз Недвижимость
ID: 69332

Похожие объявления

Об этом объекте знает всё:

Адеми Маликова

Свяжитесь со мной

Запланировать показ?