ID объекта : 69079
Тип: Элитка
Этаж: 7/9
Цена: $77 900
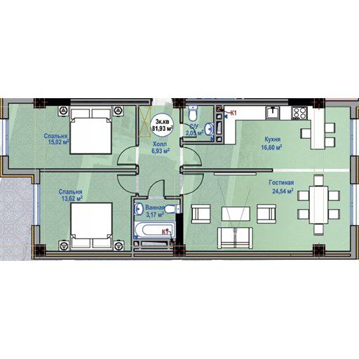
Размер объекта: 81.93 м2
Комнат: 3
Cостояние: Сдан ПСО
Коммуникации:
Газ;
Адрес: Жибек Жолу/ Калинина. Улица Ивана Мичурина, 121Б стр
Район: Аламедин-1
Описание
ПРОДАЕТСЯ 3-КОМНАТНАЯ КВАРТИРА
ЖК Каганат от СК Архи Строй
Дом комфорт класса
Площадь 81,93м2
Этаж 7 из 9
Окна выходят на восток и запад
Сдача ПСО через месяц
Документы ДДУ и Красная книга
Отопление газовое
СТОИМОСТЬ $82 000
Кыргыз Недвижимость
Кыргыз Недвижимость
ID: 69079






