Описание
Продаётся 3-комнатная квартира в элитном ЖК Discovery от Elite House!
Район: мкр. Асанбай — престижный и живописный район города
Дом: 14 этажей | Этаж: 11
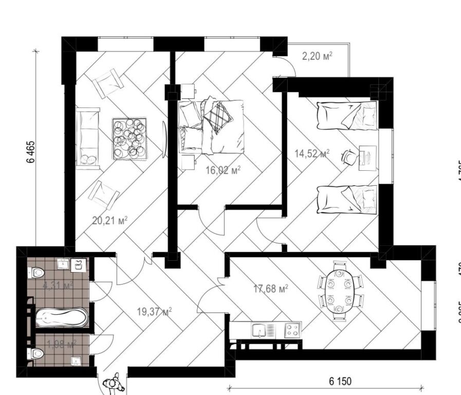
Площадь: 96 м² | кухня — 18 м²
Состояние: ПСО (под самоотделку)
Серия: Элитка
Характеристики и удобства:
• Газовое и центральное отопление
• Балкон застеклён
• Бронированные двери
• Материал стен — бетон и кирпич
• Современная архитектура и надёжное качество строительства
Документы: договор долевого участия
Срок сдачи: 2 квартал 2026 года
Тип сделки: наличный расчёт
ЖК Discovery — это современный комплекс бизнес-класса в сердце Асанбая: просторные дворы, подземный паркинг, детские площадки и невероятный вид на горы!
Цена:8.221.578 сом (94.000$)
Кыргыз Недвижимость
Кыргыз Недвижимость
ID: 71137




