ID объекта : 70262
Тип: Элитка
Этаж: 4/10
Цена: $250 000
Размер объекта: 155 м2
Комнат: 5
Cостояние: Сдан ПСО
Коммуникации:
Автономное отопление;
Адрес: магистраль
Район: Сухэ-Батора / Юж.магистраль
Описание
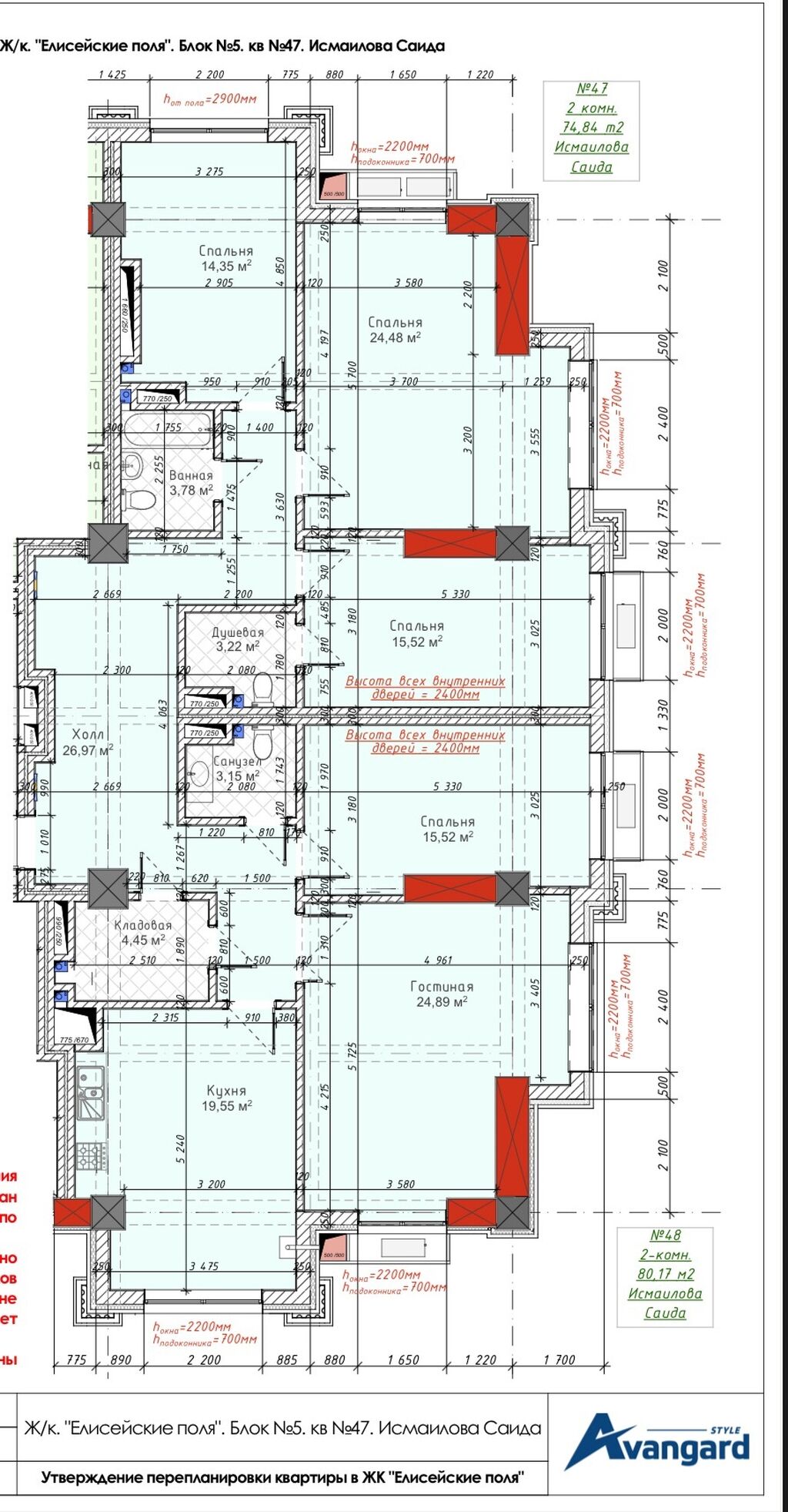
Продаётся 5-комнатная квартира, 155 м², 4 этаж, ЖК «Елисейские Поля», премиум-класс от Авангард Стиль.
Объединены две 2-комнатные квартиры, дизайнерский проект в подарок.
📍 Асанбай мкр
🏗 Элитка, кирпичный дом 2024 г.
🔥 Газовое отопление, ПСО (под самоотделку)
📜 Красная книга
🚗 Подземная парковка, лифт
🎥 Видеонаблюдение, закрытая территория
👶 Детские площадки, аллеи, фонтан, зоны отдыха
Идеально для комфортной жизни в современном и тихом квартале.
Кыргыз Недвижимость
Кыргыз Недвижимость
ID: 70262














