ID объекта : 57322
Тип: Коммерческая
Этаж: 0/1
Цена: $1 800/ в месяц
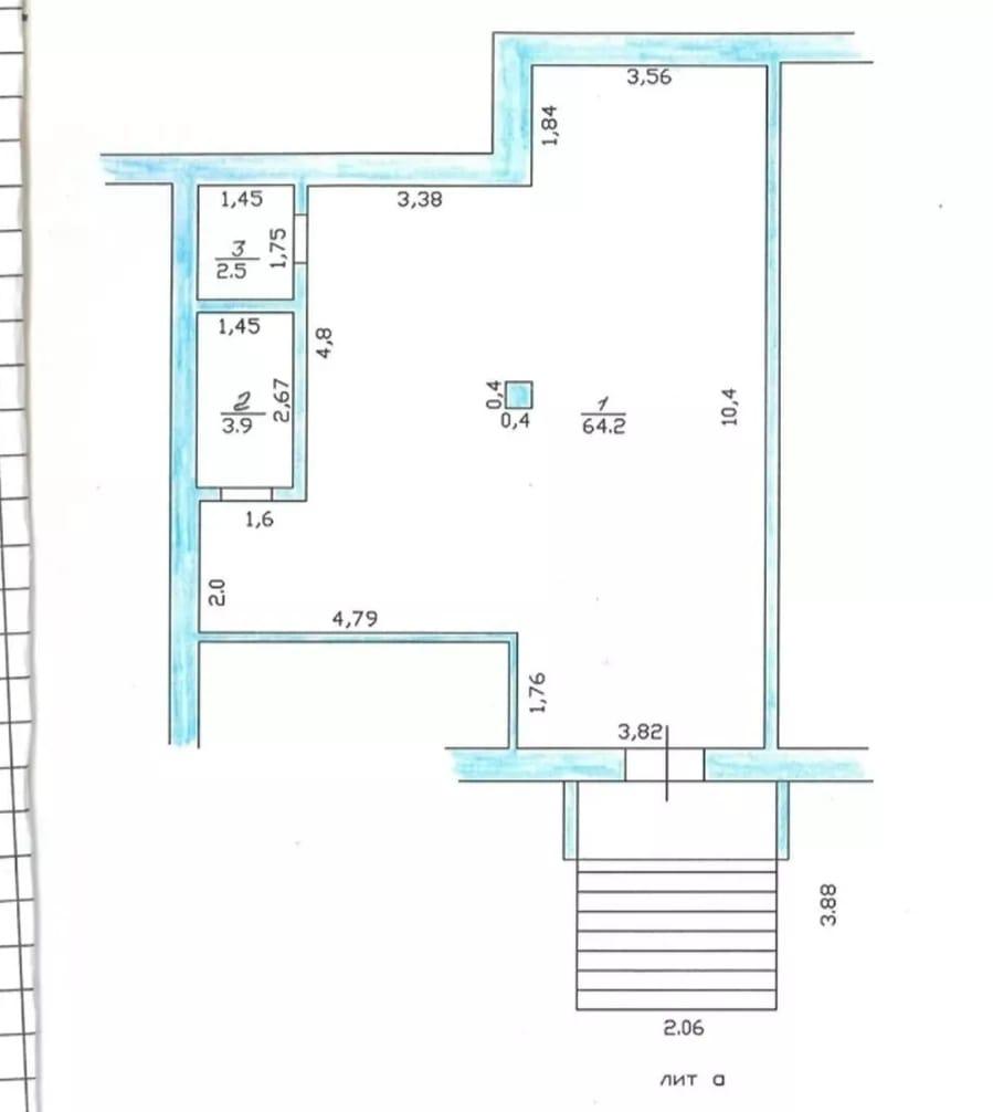
Размер объекта: 90 м2
Комнат:
Cостояние:
Коммуникации:
Адрес:
Район: Южная магистраль / пр.Чынгыза Айтматова
Описание
🔥 Сдаётся коммерция в топ-локации!
💼 Цокольное помещение — 90 м²
📍 Магистраль Бакаева, первая линия — отличная видимость и поток
✅ Идеально под бизнес: магазин, офис, студию, салон
🛠️ Состояние — ПСО, ремонт предусмотрен
💸 Цена — 20$/м², торг уместен
⚡ Быстрый выход на сделку. Локация с потенциалом роста!
Пиши/звони — покажу сегодня.
Кыргыз Недвижимость
ID: 57322


