ID объекта : 66104
Тип: Элитка
Этаж: 3/3
Цена: $30 500
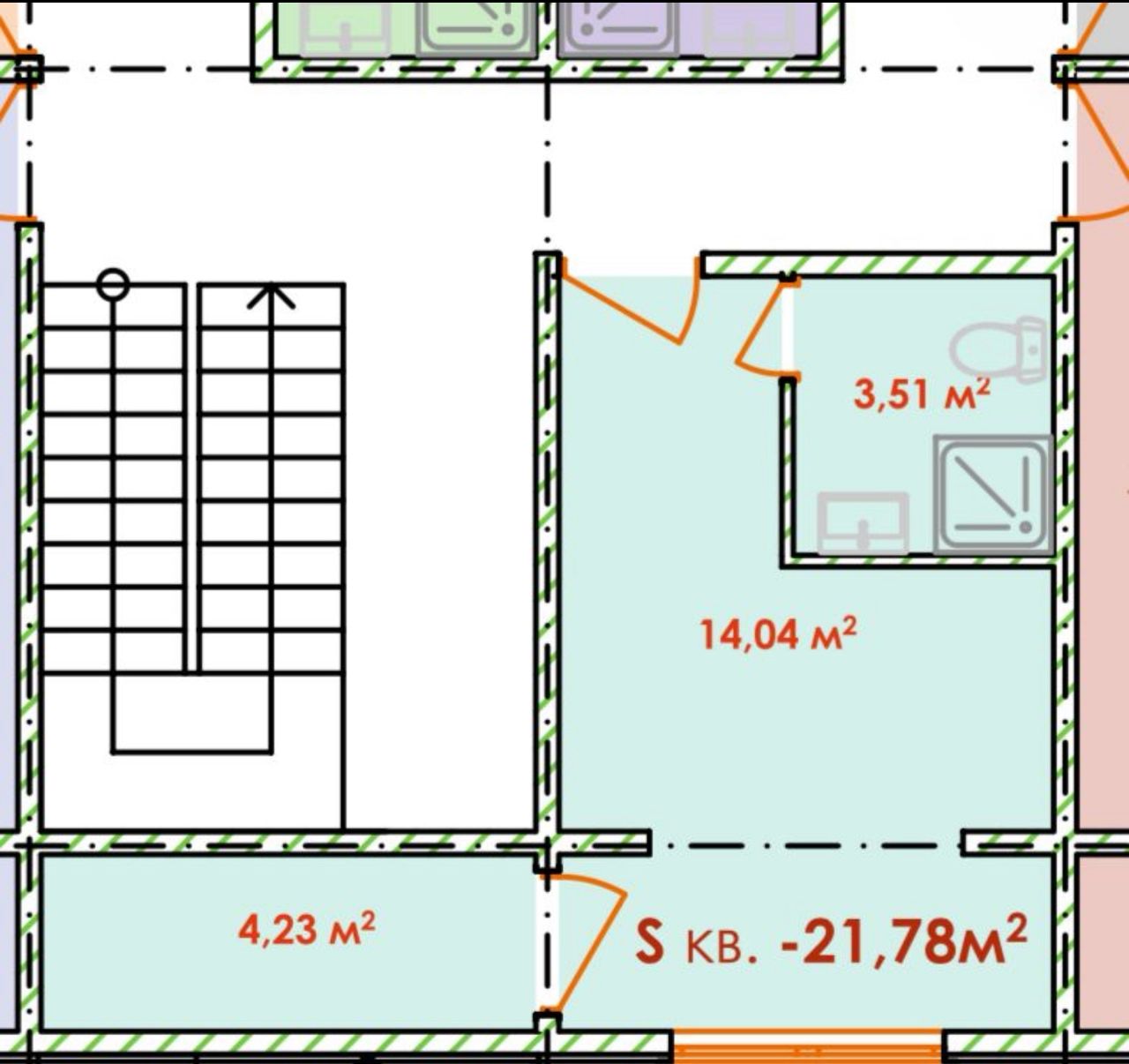
Размер объекта: 22 м2
Комнат: 1
Cостояние: Сдан ПСО
Коммуникации:
Газ;
Адрес:
Район: Шлагбаум
Описание
продается 1 комнатная квартира
22 м2
3 этаж из 3
застройщик - бекем курулуш
клубный дом
Кыргыз Недвижимость
ID: 66104




