ID объекта : 73866
Тип: Элитка
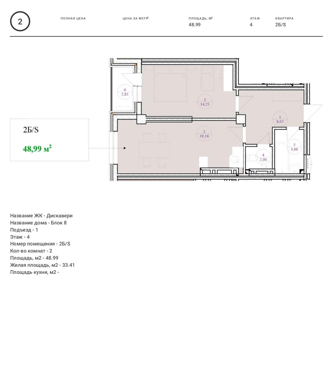
Этаж: 4/10
Цена: $63 680
Размер объекта: 48.99 м2
Комнат: 1
Cостояние: Строящийся ПСО
Коммуникации:
Автономное отопление;
Адрес:
Район: Асанбай мкр.
Описание
Продается 1 комнатная квартира в ЖК Discovery
8 блок , 4 этаж
Площадь 48.99м2
ПСО сдача 3 квартал 2026
Окна на запад на Нью Сити
Цена 1300 $ за м2
Кыргыз Недвижимость
ID: 73866






