ID объекта : 65472
Тип: Элитка
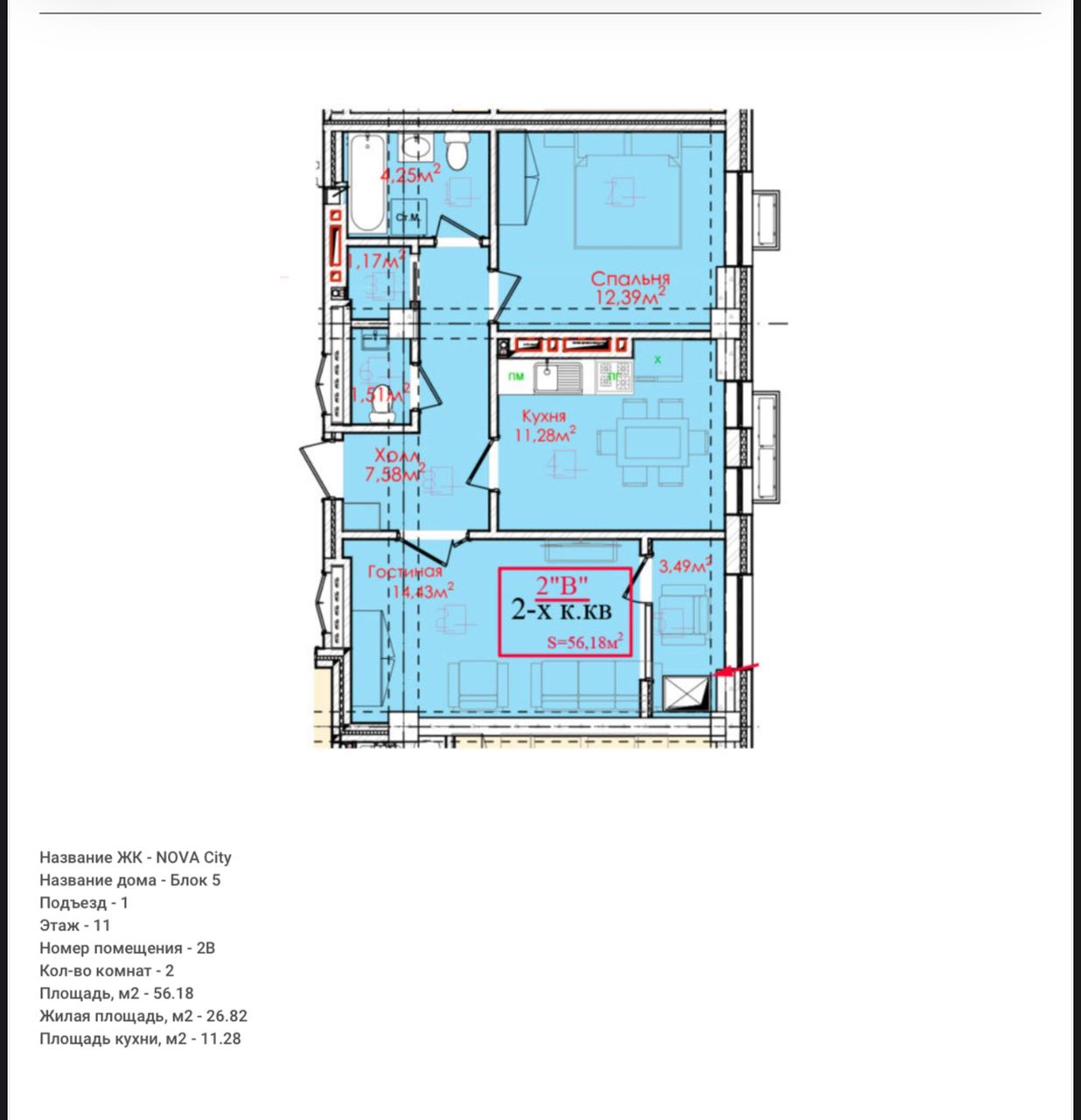
Этаж: 11/14
Цена: $73 000
Размер объекта: 56.18 м2
Комнат: 2
Cостояние: Сдан ПСО
Коммуникации:
Газ;
Адрес:
Район: Горького/Алматинка
Описание
🏢 Продаётся 2 ком квартира в ЖК Нова Сити
Застройщик: Элит Хаус
Этаж: 11/12
Площадь: 56,18 м²
Сданный блок:
Блок: 5
💰 Цена: 73 000$$$
📞 Телефон для связи: [ваш номер]
Кыргыз Недвижимость
ID: 65472


