ID объекта : 70554
Тип: Элитка
Этаж: 12/14
Цена: $83 000
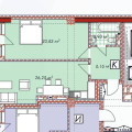
Размер объекта: 60 м2
Комнат: 2
Cостояние: Строящийся ПСО
Коммуникации:
Все коммуникации центральные;
Газ;
Адрес:
Район: Юж.Магистраль / Советская
Описание
🏙️ Продаётся 2‑комнатная квартира Студия
🏢 ЖК Crystal Tower, СК Emark Group ( Burana Grand )
📍 Этаж: 12 из 14
📐 Площадь: 60 м²
🔥 Отопление: газовое
📄 Документы: Красная Книга, ДДу ( ГРС проходит )
🏗️ Сдача под ПСО 1 квартал 2026год
💰 Цена: 83000$
✨ Отличный вариант для комфортной жизни или инвестиций!
Кыргыз Недвижимость
ID: 70554




