Описание
Срочно продаю 2-комн. квартиру в строящемся
ЖК премиум класса "Москва Сити" от лучшей строительной компании "Авангард Стиль".
Адрес: г. Бишкек, ул. Токомбаева, 21/6 (ориентир - микрорайон Асанбай)
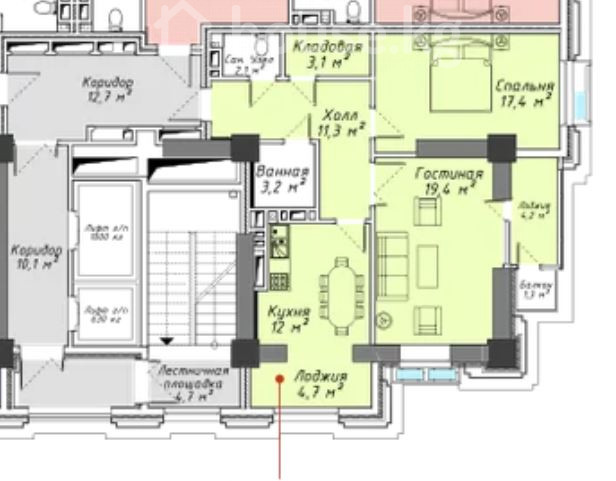
Квартира в 5-м блоке, на 13 этаже из 16, общей площадью 78 кв. метров.
Площадь ЖК - 3 гектара, из них: площадь застройки - всего 30%, а площадь двора и озеленения - 70% или 2,1 гектара.
Двор будет огорожен, охрана на въездах.
Концепция - двор без машин. Во дворе будет 8 детских площадок, поля для мини-футбола и бaскетбола, 350-метровая беговая дорожка, деревья, беседки и скамейки, прогулочные дорожки.
Сдача под ПСО - 2028 год.
Документы: договор ДДУ.
Оформление в офисе стройкомпании
Цена 120900$ / 10.518.300 сом
Кыргыз недвижимость
Кыргыз Недвижимость
ID: 59760




