ID объекта : 80693
Тип: Элитка
Этаж: 10/14
Цена: $127 000
Размер объекта: 80 м2
Комнат: 2
Cостояние: Сдан ПСО
Коммуникации:
Все коммуникации центральные;
Адрес:
Район: Физкультурный
Описание
🏡 Продаётся шикарная 2-комнатная квартира в районе Медерова / Бектенова!
✨ ЖК «Гармония» — дом премиум-класса от надежной строительной компании О2.
🔐 Закрытая территория и система «умный дом».
🏢 10 этаж из 14.
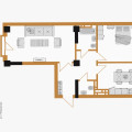
🌤 Сквозная планировка — окна на север и юг. на медерова/и на горы
📐 Площадь 80,53 м².
🛠 Под ПСО. Сдача: март–апрель 2026 года.
Преимущества:
🛋 Просторная гостиная 25,55 м²
🛏 Уютная спальня 17,53 м²
🍽 Отдельная кухня 14,97 м²
🚿 Раздельный санузел
🌅 Лоджия
Идеальный вариант для комфортной жизни в современном комплексе 💎
Цена 127000$
Кыргыз Недвижимость
ID: 80693
.png)
.png)


-preview.jpg)
-preview.jpg)


