Элитка, 2 ком, 83 м2, этаж 8/10, ж/к Aalam City, Сост: Сдан ПСО

$94 000 / 8 220 300сом
, 7 апреля/горького

ID: 81654
В понравившиеся
Срочная продажа
Фото
Карта

Обзор

  • Опубликовано:
  • 04.03.2026 11:28
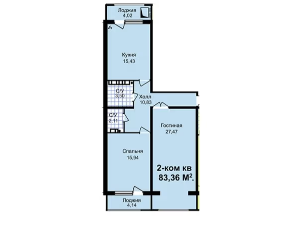
  • 83 м2
ID объекта : 81654
Тип:
Этаж: 8/10
Цена: $94 000
Размер объекта: 83 м2
Комнат: 2
Cостояние: Сдан ПСО
Коммуникации: Автономное отопление; Все коммуникации центральные;
Адрес: 7 апреля/горького
Район: 7 апреля/Горького

Описание

🏡Срочно продается квартира (white box) в ЖК «Аалам Сити-2»
Застройщик «Аалам Строй »
 
💫 7 Апреля/Анкара
 
📌Площадь: 83,36 м2
📌Этаж: 8 этаж из 10. 4-й блок
📌Коммуникации центральные, отопление: газовый котел
📌Окна выходят на восток и на запад (сквозной)
📌Бесшумные лифты
📌Тип строения: Монолитно железобетонный каркас, стены панельные.
📌Просторный подъезд, широкие лестницы
📌Входная дверь в подъезд по Face ID ( бесключевой доступ) в будущем 
 
Рядом пешком 5 минут ходьбы Технопарк, Дасмия, самый большой спорт клуб, Азия гипермаркет, KFC,  Куликовский и тд.
Очень быстро можно добраться до центра города.
 
💣 ПСО сдан
 
Цена: $94000 (8 243 800) мини торг

 

Тел.

Кыргыз Недвижимость
ID: 81654

Похожие объявления

Об этом объекте знает всё:

Бекзат Аманбек уулу

Свяжитесь со мной

Запланировать показ?