ID объекта : 36915
Тип: Элитка
Этаж: 12/15
Цена: $110 000
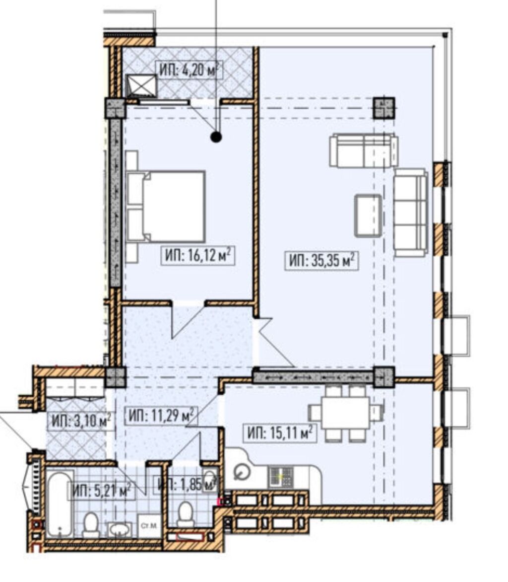
Размер объекта: 92.23 м2
Комнат: 2
Cостояние: Строящийся ПСО
Коммуникации:
Адрес:
Район: Асанбай мкр.
Описание
Продается 2-х комнатная квартира
Расположение: мкр Асанбай
Строящийся ПСО
Сдача 2 квартал 2025г.
СК: Elite House
ЖК: New York city
Площадь: 92,23 м2
Этаж: 12/15
Закрытая Территория
Отопление: Автономное
Сан Узел: Раздельный
Материал стен: Кирпич
Документы: ДДУ
Цена : 110.000$
Кыргыз Недвижимость
Кыргыз Недвижимость
ID: 36915










