Элитка, 2 ком, 92 м2, этаж 12/15, Сост: Сдан ПСО

$112 000 / 9 794 400сом
,

ID: 35762
В понравившиеся
Срочная продажа
Фото
Карта

Обзор

  • Опубликовано:
  • 12.11.2024 11:31
  • 92 м2
ID объекта : 35762
Тип:
Этаж: 12/15
Цена: $112 000
Размер объекта: 92 м2
Комнат: 2
Cостояние: Сдан ПСО
Коммуникации: Газ;
Адрес:
Район: Асанбай мкр.

Описание

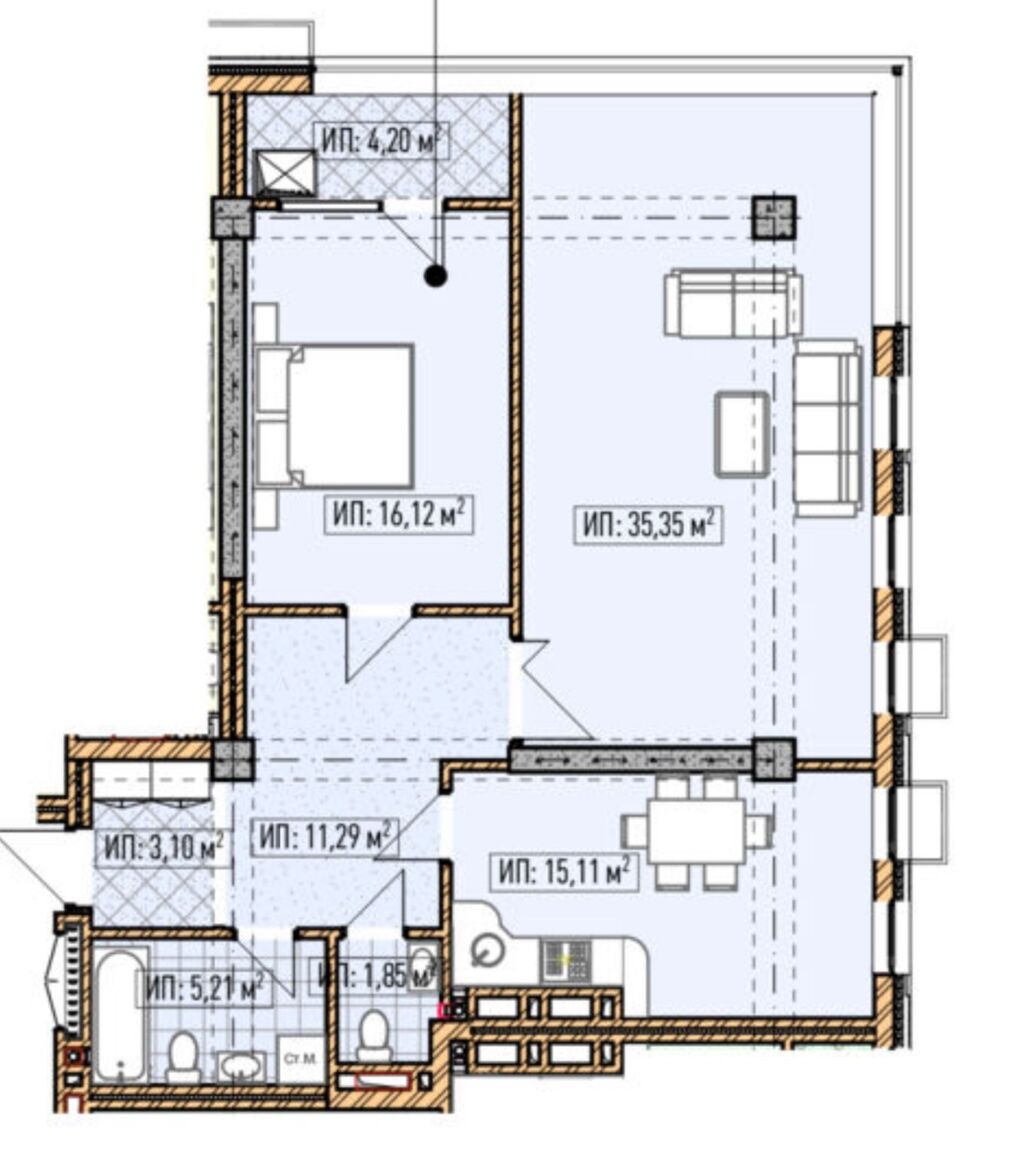
2 комн.кв. 92,23 кв .м. на 12 этаже 15 этажного дома в ЖК New York City СК Элит Хаус
Шикарная квартира, с панорамными, алюминиевыми окнами от пола до потолка с видом на город. Скоро сдача ПСО. Блок 6. Огромный зал 35 квадратных метров, раздельные санузлы. Район Асанбай, комплекс находится между французским и итальянским кварталами
Красная книга, оформляется через госрегистр
Прошу 112000$ собственник
 

Кыргыз Недвижимость
ID: 35762

Похожие объявления

Об этом объекте знает всё:

Аман Джанузаков

Специалист по недвижимости

Свяжитесь со мной

Запланировать показ?