ID объекта : 81708
Тип: Элитка
Этаж: 7/10
Цена: $202 000
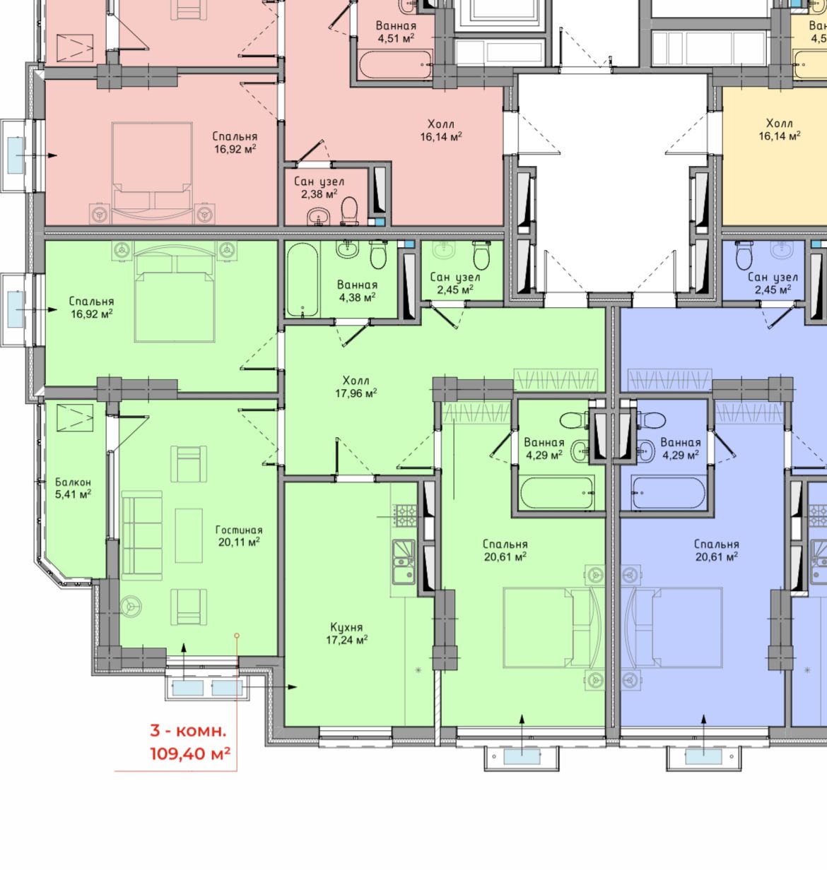
Размер объекта: 109 м2
Комнат: 3
Cостояние: Сдан ПСО
Коммуникации:
Автономное отопление;
Адрес: Улица Куттубаева, 19 стр
Район: Асанбай мкр.
Описание
🏡 Продаётся 3-комнатная квартира премиум-класса
📍 Бишкек, Магистраль — ул. Токомбаева / Куттубаева
🏙️ЖК «Елисейские поля»
📐 Площадь: 109 м²
▫️7/10 этаж
🔸4 блок
👷♂️ Застройщик: Авангард Стиль
🧱Состояние — ПСО
Отопление — автономное газовое
💰Цена: 1853$ за м2
Кыргыз Недвижимость
Кыргыз Недвижимость
ID: 81708




