Элитка, 3 ком, 81 м2, этаж 5/12, ж/к Каусар Билдинг(Kausar Building), Сост: Сдан ПСО

$95 000 / 8 307 750сом
,

ID: 52616
В понравившиеся
Срочная продажа
Фото
Карта

Обзор

  • Опубликовано:
  • 27.04.2025 21:51
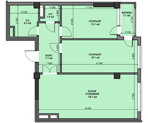
  • 81 м2
ID объекта : 52616
Тип:
Этаж: 5/12
Цена: $95 000
Размер объекта: 81 м2
Комнат: 3
Cостояние: Сдан ПСО
Коммуникации: Все коммуникации центральные;
Адрес:
Район: Джал мкр

Описание

Вот красивое описание на основе всех ваших данных:

Продаётся 3-комнатная квартира в новом доме, район Джал мкр ( Верхний )

Площадь: 81 м²

Этаж: 5 из 12

Серия: Элитка

Материал стен: Кирпич

Отопление: Центральное

Состояние: ПСО (под самоотделку)

Год постройки: 2024

Документы:

Акт ввода в эксплуатацию

Договор долевого участия

Красная книга

Дополнительно:

Бронированные двери

Видеонаблюдение

Закрытая территория

Лифт

Раздельный санузел

ЦЕНА : 95.000$

Кыргыз Недвижимость
ID: 52616

Похожие объявления

Об этом объекте знает всё:

Рустам Нусупов

Директор филиала

Свяжитесь со мной

Запланировать показ?