ID объекта : 71281
Тип: Элитка
Этаж: 11/16
Цена: $1 500
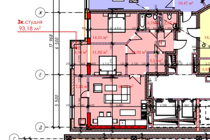
Размер объекта: 93.18 м2
Комнат: 3
Cостояние: Строящийся ПСО
Коммуникации:
Автономное отопление;
Адрес:
Район: Юж.Магистраль / Советская
Описание
Продается 3х комнатная студийная квартира
Площадь 93,18м2
Расположено на 11 этаже из 16
Окна выходят на парк и на двор
Блок Б
СК ЭМАРК Групп , ЖК LOCAL
Расположение Жукеева Пудовкина, Магистраль
Цена 1500$ за м2
Кыргыз Недвижимость
Кыргыз Недвижимость
ID: 71281




