ID объекта : 79484
Тип: Элитка
Этаж: 13/17
Цена: $1 650
Размер объекта: 164 м2
Комнат: 4
Cостояние: Строящийся ПСО
Коммуникации:
Автономное отопление;
Адрес: Аалы Токомбаева улица, 21/6
Район: Асанбай мкр.
Описание
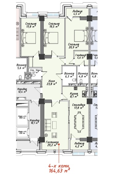
Продаётся 4-комнатная квартира
ЖК Москва Сити от СК Авангард
• Общая площадь: 164 м²
• Этаж: 13 / 17
• Документ: ДДУ
• Блок 6
• Срок сдачи: 1 квартал 2028 года
Цена: 1650 $
Кыргыз Недвижимость
ID: 79484





