ID объекта : 84825
Тип: Элитка
Этаж: 13/14
Цена: $170 000
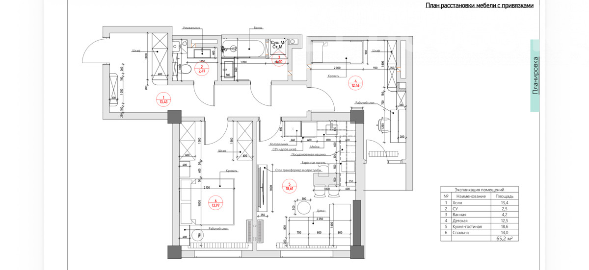
Размер объекта: 67 м2
Комнат: 2
Cостояние: Евроремонт
Коммуникации:
Газ;
Адрес: Магистраль, пр. Ч. Айтматова
Район: Проспект Айтматова
Описание
Стильная квартира.
Очень дорогой ремонт.
Натуральный камень на полу.
Освещение итальянская
Водяной теплый пол везде, на 5 контуров разделен каждая комната отдельно регулируется.
Для молодой семьи идеально подходит.
Спальная, детская и кухня гостиная.
С/У и ванная комната раздельная.
Просторная входная комната.
Имеется паркинг место для машины.
Кыргыз Недвижимость
ID: 84825






















