ID объекта : 80044
Тип: Коммерческая
Этаж: 1/2
Цена: $1 300
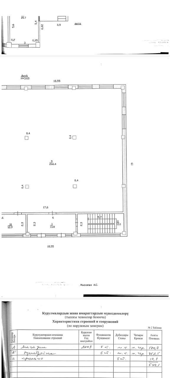
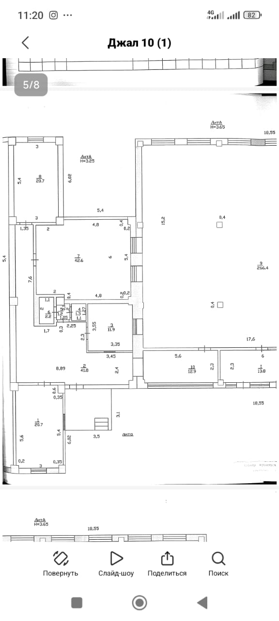
Размер объекта: 700 м2
Комнат:
Cостояние:
Коммуникации:
Адрес:
Район: Джал мкр
Описание
🏢 Продаётся отдельно стоящее здание 324 кв.м в мкр. Джал БЕЗ РЕКЛАМЫ
📍 Первая линия — отличная видимость и высокий трафик
Общая площадь: 700 м
Идеально под любой вид бизнеса:
✔ офис
✔ медицинский центр
✔ учебный центр
✔ салон красоты
✔ магазин
✔ кафе и другое
Отличное расположение в развитом районе города.
Удобный подъезд, хорошая проходимость.
Кыргыз Недвижимость
ID: 80044
.jpeg)

.jpeg)
.jpeg)

.jpeg)





-preview.jpg)

-preview.jpg)
-preview.jpg)

-preview.jpg)





