Описание
ПРОДАЁТСЯ УЧАСТОК —по документам 63 сотки
📍 Локация: восточная часть города Бишкек, район Анкара — Ауэзова, рядом с АЮ-Грантом, жилыми комплексами «Эверест», «Борсан» и «Восточный Парк 2».
Участок расположен в престижной, активно застраивающейся зоне города — отличное место для строительства жилых домов или инвестиционного проекта.
✅ Документы:
• Красная книга 📕
• Договор купли-продажи (ДКП)
• Все документы на руках, готовы к быстрой сделке
✅ Коммуникации:
• Центральная канализация
• Газ
• Вода (установлен однотонник)
• Электричество — трансформатор тысячник!
✅ Дополнительно:
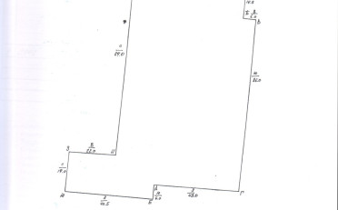
• Участок правильной квадратной формы
• Ровный рельеф
• Все коммуникации подключены
• Удобные подъездные пути
💰 Цена: 2 700 000 $
💬 Торг открыт!
📞 Редкое предложение в одном из самых перспективных районов города — участок полностью готов к продаже и быстрому оформлению
Кыргыз Недвижимость
ID: 69739
.jpeg)



-preview.jpg)



