Описание
Земельный участок с госактом о праве частной собственности (КР).
Назначение: индивидуальное жилищное строительство и бизнеса барнхаусы, афреймы
- Расположение: с. Коруумду, побережье Иссык-Куля. Рядом трассой 550м недалеко центр отдыха «Карвен Иссык-Куль», санаторий Аврора, Семирам, самый чистый пляж в селе корумду более 12 пансионатов, селе Комсомоле более 15 пансионатов пляжная зона и коттеджная застройка. На спутниковой схеме отмечено точное место..
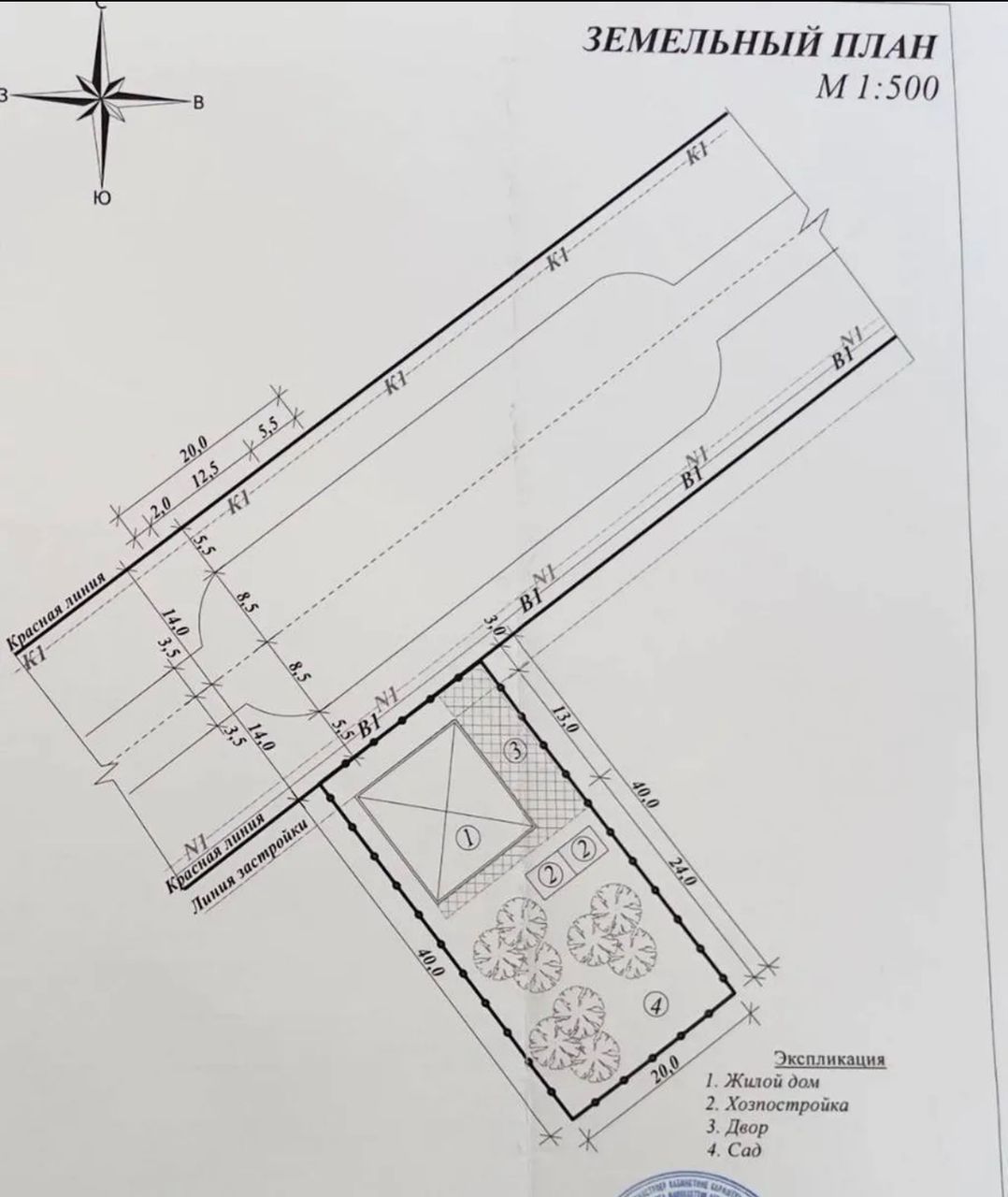
- Площадь и габариты по генплану: прямоугольная форма, ориентировочные стороны 20×40 м (схема и экспликация прилагаются).
- Проектная планировка на участке: предусмотрены жилой дом, хозпостройка, двор и сад (экспликация 1–4 на плане).
- Подъезд: квартальные дороги, удобный выезд к трассе и берегу.
- Правовой статус: государственный акт на частную собственность; в комплекте ситуационный план М 1:2000 и земельный план М 1:500.
Кыргыз Недвижимость
ID: 72569








